Description
An industrial boiler refers to sealed equipment that heats the contained liquids to certain parameters and carries a certain pressure, using all kinds of fuels, electricity, or other energy sources.
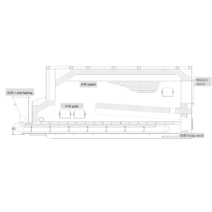
DEVICE DETAILS
A rotary drum granulator receives high-temperature, high-pressure steam from a steam boiler, a specific type of industrial boiler. The production of compound fertilizer by rotary drum steam granulation is a process of heat-granulation, which raises the material’s temperature to make the water-based material salts more soluble in the granulation. That means it contributes to the acquisition of liquid phase quantities required for material granulation at a low moisture content, which lowers heat consumption during subsequent drying so as to optimize the equipment’s production capacity.
THERMAL POWER
When choosing the type, it is important to consider the heat supply. Calculating the size of the boiler under different units of measurement is as important as calculating the total heat consumption. There are varieties of measurement units, and there are certain conversion standards for them. The heat energy unit conversions are as follows:
There are three common ways of expressing heating power in China:
1. Kcal/h, a metric unit that represents the heat that the boiler can provide per hour;
2. Ton/hour (t/h), a common term borrowed from stream boiler;
3. Megawatt (MW), an international unit, and its basic unit is W, that is, 1MW=1,000,000 W;
The conversion formula of Kcal to Mw to t is as follows:
600,000Kcal/h=1t/h=0.7MW
In addition, the power of the steam boiler is also named as “evaporation”, which means the amount of water turned into steam per hour: T/h or kilogram/h (kg/h). It can also be expressed as MW or kW.
The corresponding relationship between evaporation and power is:
1T/h=1000kg/h=0.7MW=700kW=600,000kcal/h=600Mcal/h。
TECHNICAL PARAMETERS
| Type | 1T | 2T | 4T | 6T | 8T |
| Evaporation (t/h) | 1 | 2 | 4 | 6 | 8 |
| Water tank capacity (m³) | 4.18 | 6.12 | 10.6 | 11.3 | 11.5 |
| Rated steam pressure (Mpa) | 1.0/1.25/1.6 | 1.0/1.25/1.6 | 1.0/1.25/1.6 | 1.0/1.25/1.6 | 1.0/1.25/1.6 |
| Rated steam temperature (°C) | 184/194/204 | 184/194/204 | 184/194/204 | 184/194/204 | 184/194/204 |
| Thermal efficiency (%) | 80 | 80 | 80 | 80 | 80 |
| Coal consumption (Kg/H) | 185 | 375 | 750 | 1150 | 1500 |
| Transportation size (m) | 5.3*2*2.8 | 6*2.4*3.2 | 6.8*2.6*3.5 | 8.2*3.2*3.8 | 8.1*3.3* 4 |
| Transportation weight (t) | 15.2 | 23.8 | 27 | 40 | 50 |
| Adaptive fertilizer line capacity (t/h) | 1-4 | 5-8 | 9-16 | 16-24 | 24-32 |
